Für Suchende

Für Eigentümer

Immobilien

Titelbild
Richtung Nordwest
Dächeransicht
Innenhof mit Garagen
Eckdaten
Ausstattung
Lage
Kontakt

Zeitnah verfügbar: Gewerbeimmobilie mit zwei Hallen und modernem Bürohaus!

68259 Mannheim / Feudenheim
Objekt ID: VR-13393
Kaufpreis 1.349.000,00 €

Käuferprovision: 3,57 % zzgl. MwSt.

Beschreibung

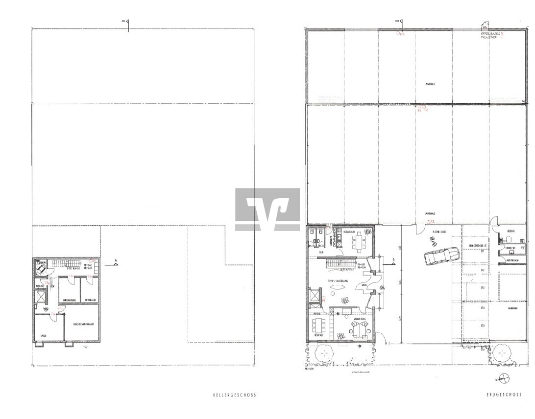
Das Kombiobjekt aus Bürohaus und Hallen, in denen aktuell eine Druckerei tätig ist, wurde 1998 in moderner Bauweise am Ortsrand von MA-Feudenheim gebaut. Zwei Hallen, zwei Garagen und das zweistöckige Bürogebäude mit Besprechungsraum im DG, sind für einen Firmensitz oder für eine gemeinsam Nutzung von 2 bis 3 Handwerkern sehr gut geeignet. Die beiden Hallen sind mit einer Durchfahrt verbunden, können aber geteilt werden. Ein Aufzug im Bürogebäude ist vorhanden.

Eckdaten

Objektart
Hallen/Lager/Produktion
Nutzungsart
Gewerbe
Objekttyp
Industriehalle und Freifläche
Verfügbar ab
01.12.2025
Zustand
Neuwertig
Zimmeranzahl
9
Nutzfläche
1.062,2 m²
Grundstücksfläche
1.350 m²
Gesamtfläche
1.062,2 m²
Vermietet
Nein
Baujahr
1998

Kosten

Kaufpreis
1.349.000,00 €
Käuferprovision
3,57 % zzgl. MwSt.

Ausstattung

-Zwei miteinander verbundene Stahlhallen aus Betonfertigteilen
-Geneigte Dachflächen in Halle 1 und Lichtkuppeln in Halle 2
-Aktuelle Ausstattung ist für Schwerlastregale geeignet
-Durchgängige Druckluft- und Starkstromanschlüsse vorhanden
-Bürostrukturen in Einzelbüros und in offene Bürobereiche gegliedert
-Teilweise Klimatisierung | voll unterkellert | Parkettfußböden | 2 Wallboxen
Um mehr Informationen und Bilder zu erhalten, können Sie das vollständige Exposé anfordern.
Vollständiges Exposé anfordern

Energieausweis

Art
Verbrauchsausweis
Endenergieverbrauch
Information folgt
Wesentliche Energieträger
Gas
Warmwasser enthalten
Ja
Energieeffizienzklasse
F
Gültig bis
30.06.2028
Baujahr
1998
Baujahr (Energieausw.)
1998
F

Sonstiges

IHR KONTAKT ZU UNS:
Bei Fragen zu diesem Objekt wenden Sie sich gerne telefonisch oder per Mail an Ihren Immobilienberater/-in.

RUNDUMSERVICE:
Gerne unterbreiten wir Ihnen Ihr persönliches Finanzierungsangebot!

~~~~~~~~~~~~~~~~~~~~~~~~~~~~~~~~~~~~~~~~~~~~~~~~~~~~~
SIE suchen kompetente Beratung beim Verkauf, Kauf oder
bei der Bewertung oder Vermietung IHRER Immobilie?

Wir sind Ihr Makler in der Metropolregion Rhein-Neckar!

"Immobilienangelegenheiten sind Vertrauenssache.
Nutzen SIE unsere langjährige Erfahrung".

Rufen SIE uns einfach unverbindlich an!
Telefon: 0621 1282-11333
~~~~~~~~~~~~~~~~~~~~~~~~~~~~~~~~~~~~~~~~~~~~~~~~~~~~~

Lage

Um die vollständigen Informationen über die Lage zu sehen, können Sie das vollständige Exposé anfordern.

Ansprechpartner

Erik Schnatterer
Sie haben Interesse?
Erik Schnatterer
Ihr persönlicher Ansprechpartner:
Erik Schnatterer
Wir schicken Ihnen einen Link zum vollständigen Exposé.

Jetzt vollständiges Exposé anfordern!

* Pflichtfeld

Kontakt

Immobilien GmbH der VR Bank Rhein-Neckar eG

Startseite